Proyecto San Fermín

Tipo de proyecto
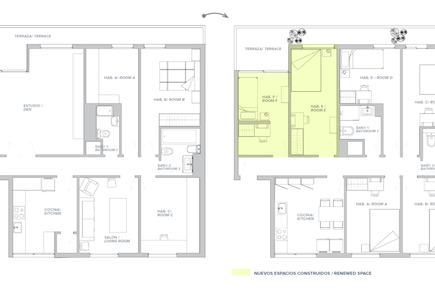
Fix / Co-living
Capital Invertido
268.539 €
Renta Anual
19.200 €
ROI Anual Bruto
7,14%
Área m²
122
Nº de Habitaciones
6
Baños
2
Detalles del proyecto

Dos Family Offices constituidos en España con capital extranjero buscan co-invertir en proyectos de alta rentabilidad en Madrid capital. Reventa en menos de 36 meses.

Ubicación del proyecto

Zona Usera, Madrid

El distrito de Usera está compuesto por siete barrios: Orcasur, Orcasitas, Zofío, San Fermín, Pradolongo, Almendrales y Moscardó. Se ubica al sur de la capital española y del Rio Manzanares. La población total es de 142.300 habitantes y tiene una extensión de 7,8 km2. En términos macroeconómicos, Usera se posiciona como un distrito con una alta demanda de vivienda accesible.

Por último, la zona industrial denominada “Parc Sagunt” se convertirá en una de las mayores zonas industriales de Europa con 3 millones de metros cuadrados con empresas como Mercadona, Crown Holding, Grupo Arnedo, Acotral, Zuvamesa, Jofemesa e Inlet Fish.

RESUMEN INVERSIÓN
180.000€

Valor de compra

13.870€

Impuestos + Honorarios

74.669€

Gastos y Obras

268.539 €

Inversión Total

19.200 €

Alquiler Anual

7,14%

ROI Anual Bruto contable

CREACIÓN DE VALOR
122

Área escriturada en m²

64,76%

Valorización de m²

1.475€

Precio m² en compra

2.430€

Precio m² en venta

296.460€

Precio estimado a partir mes 24
y venta antes del mes 36

10,41%

Valorización mínima proyecto