Proyecto Santa Eugenia

Tipo de proyecto
Fix / Co-living
Capital Invertido
300.000€
Renta Anual
16.800€
ROI Anual Bruto
6,06%
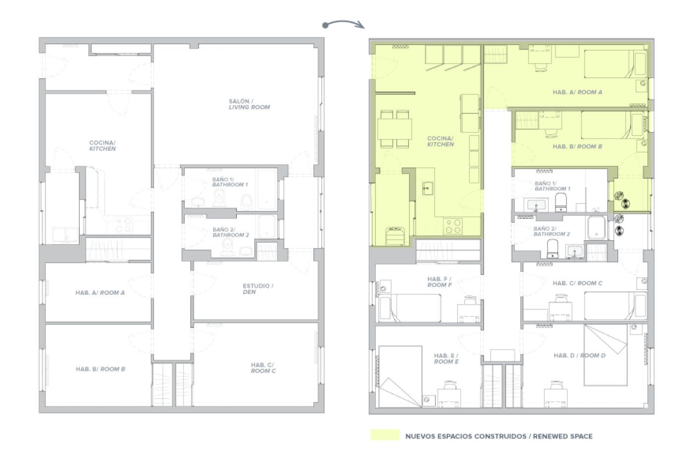
Área m²
94
Nº de Habitaciones
5
Baños
2
Detalles del proyecto

Cliente interesado en invertir en Co-living busca un proyecto en la ciudad de Madrid con un retorno de inversión superior al 6%.

Ubicación del proyecto

Zona Villa de Vallecas, Madrid

Vallecas es un distrito muy extenso, ya que se divide en dos: Puente de Vallecas, formado por los barrios de Entrevías, El Pozo, San Diego, Palomeras Bajas, Palomeras Sureste, Portazgo y Nueva Numancia; y la Villa de Vallecas, con el Casco Histórico, Santa Eugenia y el recientemente construido Ensanche de Vallecas.
Villa de Vallecas cuenta con el Museo de Historia, donde podrás conocer la historia y el desarrollo del distrito a través de artefactos, fotografías y documentos. El distrito también celebra festivales culturales, como las Fiestas de la Karmela en julio, que incluyen música en vivo, bailes, comida callejera y un desfile festivo.
Esta zona está bien comunicada con el centro de Madrid, lo que te permite acceder fácilmente a otras atracciones culturales y lugares de interés en la capital.
RESUMEN INVERSIÓN
175.000€

Valor de compra

27.073€

Impuestos + Honorarios

75.068€

Gastos y Obras

300.000€

Inversión Total

16.800€

Alquiler Anual

6,06%

ROI Anual Bruto contable

CREACIÓN DE VALOR
94

Área escriturada en m²

83,25%

Valorización de m²

1.862€

Precio m² en compra

3.412€

Precio m² en venta

320.693€

Precio estimado a partir mes 24
y venta antes del mes 36

15,71%

Valorización mínima proyecto